Cod. AN813 - Tognazza
Monteriggioni
€220.000
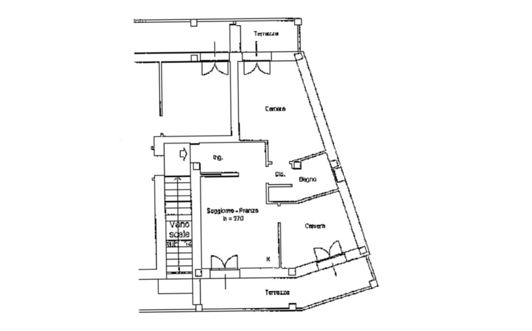
Posto al primo ed ultimo piano di fabbricato realizzato nel 2017 in perfette condizioni interne ed esterne, vendesi appartamento di 66 mq divisi tra soggiorno con angolo cottura ed ampia terrazza, disimpegno, camera matrimoniale con altra terrazza, camera singola e bagno finestrato. Completo di posto auto coperto, posto auto scoperto e cantina.
Utenze autonome, impianti a norma, impianto di climatizzazione caldo/freddo e riscaldamento a pavimento.
Ingresso per sole due unità abitative, spese condominiali irrisorie pari ad euro 20 al mese
- Codice AN813
- Tipo di Annuncio Vendita
- Tipologia Appartamenti
- Provincia SIENA
- Comune Monteriggioni
- Località Tognazza
- Numero Locali 4
- Classe Energetica G IPE/EPI: kWh/mqanno
- Piano 2 di 2
- Spese condominiali 20 €/mese
- Anno costruzione 2017
- Stato conservazione interni ottime
- Stato conservazione esterni ottime
- Posto auto privato SI
- Balcone SI
- Riscaldamento autonomo SI
- Climatizzatore SI




















