Cod. V963 - Castelnuovo Berardenga
Castelnuovo Berardenga
€680.000
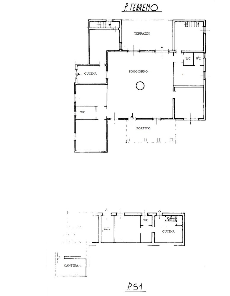
Villetta indipendente realizzata nel 1970 per complessivi 320 mq per lo più al piano terra circondata da 5.000 mq di giardino
recintato ed ulteriori 2 ettari tra frutteto, oliveto e spazio dedicato alla piscina di 10x20 mt.
Sul terreno insiste un pozzo artesiano che garantisce acqua tutto l’anno, Il giardino e’ servito da impianto di irrigazione.
Si divide tra un grandissimo salone con camino, cucina, quattro camere, tre bagni ed al piano S1 (collegato da scala interna
e con accesso anche diretto dall’esterno) un altra cucina, camera, bagno, un’ampia cantina e due garage.
Nel 2022 è stato istallato installato l’impianto fotovoltaico che alimenta anche le pompe di calore caldo/freddo.
Tutto autonomo. Indipendente ma non isolata.
Necessita di ristrutturazione parziale parti interne in particolare alle rifiniture, ai bagni, alle due cucina e della completa
ristrutturazione della piscina e del campo da tennis oltre che la sistemazione di tutto il giardino e terreno oramai in stato di abbandono.
- Codice V963
- Tipo di Annuncio Vendita
- Tipologia Villa
- Provincia SIENA
- Comune Castelnuovo Berardenga
- Località Castelnuovo Berardenga
- Numero Locali 10
- Classe Energetica In fase di richiesta IPE/EPI: kWh/mqanno
- Spese condominiali 0 €/mese
- Anno costruzione 1970
- Anno ristrutturazione 2022
- Stato conservazione interni buone
- Stato conservazione esterni buone
- Terrazza SI
- Piscina SI
- Riscaldamento autonomo SI
- Camino/Termo camino SI
- Pannelli solari SI
















