Cod. AT673 - Viale Mazzini
Siena
€35.000
Cedesi avviata e funzionante attività con licenza di vendita al dettaglio di articoli di pelletteria, abbigliamento, bigiotteria, accessori ed oggettistica oltre al noleggio di abiti e costumi.
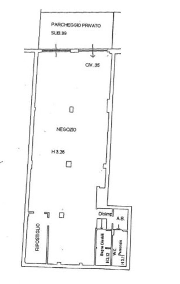
Fondo di 150 mq con due ampie vetrine fronte strada in punto di alto passaggio a ridosso della cinta muraria. Due posti auto di pertinenza dell’attività. Nel prezzo richiesto è compresa la merce in magazzino.
Contratto di affitto rinnovato.
- Codice AT673
- Tipo di Annuncio Vendita
- Tipologia Attivita commerciale
- Provincia SIENA
- Comune Siena
- Località Viale Mazzini
- Numero Locali 1
- Classe Energetica Non indicato IPE/EPI: kWh/mqanno
- Piano t di
- Stato conservazione interni buone
- Riscaldamento autonomo SI



