Cod. ANX816 - Via del Pacchia
Siena
€220.000
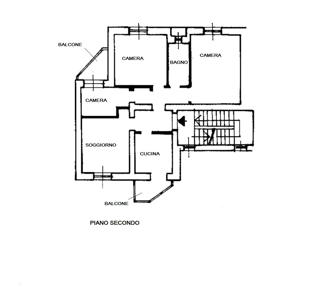
In Via del Pacchia, quartiere del Petriccio, vendesi al piano secondo ed ultimo di condominio diviso in se unità, appartamento di 95 mq divisi tra ingresso, cucina con balcone, soggiorno, due camera matrimoniali, una camera singola con balcone e bagno finestrato oltre ad una cantina.
Utenze autonome.
Internamente è stato rinnovato solo in alcune parti ma non ristrutturato completamente; tetto e facciata ristrutturate nel 2021.
- Codice ANX816
- Tipo di Annuncio Vendita
- Tipologia Appartamenti
- Provincia SIENA
- Comune Siena
- Località Via del Pacchia
- Numero Locali 5
- Classe Energetica G IPE/EPI: kWh/mqanno
- Piano 2 di 2
- Spese condominiali 30 €/mese
- Anno costruzione 1970
- Stato conservazione interni MEDIE
- Stato conservazione esterni OTTIME
- Balcone SI
- Riscaldamento autonomo SI












