Cod. APX608 - San Giovanni a Cerreto
Castelnuovo Berardenga
€470.000
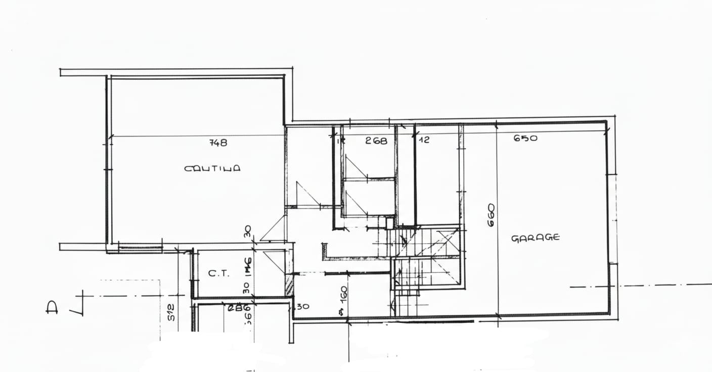
Terratetto in bifamiliare in ottime condizioni generali di circa mq.170 con doppio ingresso sia pedonale che carrabile che immettono nell’ampio e ben curato giardino - resede di circa 1500 mq.. L’appartamento si compone di ingresso, disimpegno, ampio soggiorno pranzo con caminetto, cucina abitabile, tre camere, due bagni e ripostiglio. Tramite scala interna si accede anche direttamente al piano sottostante dove trovano posto un bel rustico, un bagno, il locale tecnico, cantina e ripostigli nonche’ il garage di mq. 35. L’appartamento si sviluppa su due livelli
- Codice APX608
- Tipo di Annuncio Vendita
- Tipologia Villette a schiera
- Provincia SIENA
- Comune Castelnuovo Berardenga
- Località San Giovanni a Cerreto
- Numero Locali 8
- Classe Energetica G IPE/EPI: kWh/mqanno
- Piano t di
- Stato conservazione interni buone
- Stato conservazione esterni buone
- Posto auto privato SI
- Riscaldamento autonomo SI





















