Cod. UA75 - Via Achille Sclavo
Siena
€1.100
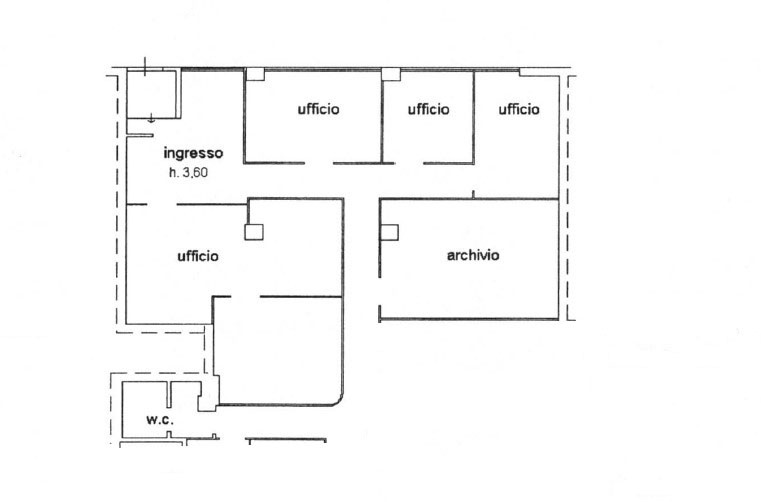
In zona di alto passaggio con vetrine fronte strada proponiamo in affitto ampio ufficio di mq circa 100 mq con ingresso indipendente composto di 5 stanze, con sala riunioni e bagno condivisi.
Parzialmente arredato, già libero.
Scheda tecnica
- Codice UA75
- Tipo di Annuncio Affitto
- Tipologia Ufficio
- Provincia SIENA
- Comune Siena
- Località Via Achille Sclavo
- Numero Locali 6
- Classe Energetica G IPE/EPI: kWh/mqanno
- Piano t di
- Stato conservazione interni ottime
- Stato conservazione esterni ottime
- Climatizzatore SI



















